bd. Dacia, Botanica, Chisinau Vânzare

Botanica

252 120€

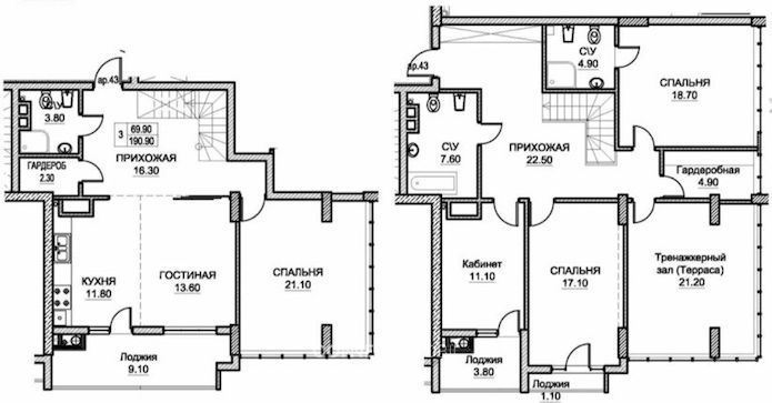
191 m2

  • 3
  • 3
  • 191 m2
  • 10/10
AVANTAJE
  • Încălzire autonomă
  • Ferestre PVC
  • Ușă blindată
  • Ascensor
  • Teren de joaca
Descriere

Spre vânzare PENTHOUSE amplasat în sectorul Botanica, bd. Dacia.
Suprafata totala: 190.9 mp
Compartimentare: 3 camere, living, bucatarie, 3 blocuri sanitare, garderoba, terasa.
Complex: Exfactor
Avantaje:
- Varianta alba;
- Geamuri termopan;
- Geamuri panoramice;
- Infrastructura dezvoltata;
Curtea complexului este amenajată cu teren de joacă pentru copii.
În imediată apropiere găsiți: bănci, saloane de frumusețe, supermarket-uri, grădinițe, licee, etc.
Acces facil la transportul public în orice direcție a orașului.
ATENȚIE! Acum poți achita comod în rate cu doar 30% rată inițială sau prin programul guvernamental Prima Casă Plus cu doar 10% prima rată!
Compania CONNECT IMOBIL vă ajută în procesul de vînzare-cumpărare a unui imobil, teren sau spațiu comercial, beneficiind de consultanță juridică în domeniul imobiliar și accesarea unui credit ipotecar.
TOATE OFERTELE DISPONIBILE LE GĂSIȚI AICI https://www.connectimobil.md/sale/kva
 



Locație
logo maib