str. Bisericii, Durlesti, Chisinau Vânzare

Durlesti

102 000€

75 m2

  • 3
  • 1
  • 75 m2
  • 2/5
AVANTAJE
  • Încălzire autonomă
  • Încălzire prin pardoseală
  • Ferestre PVC
  • Ușă blindată
  • Teren de joaca
Descriere

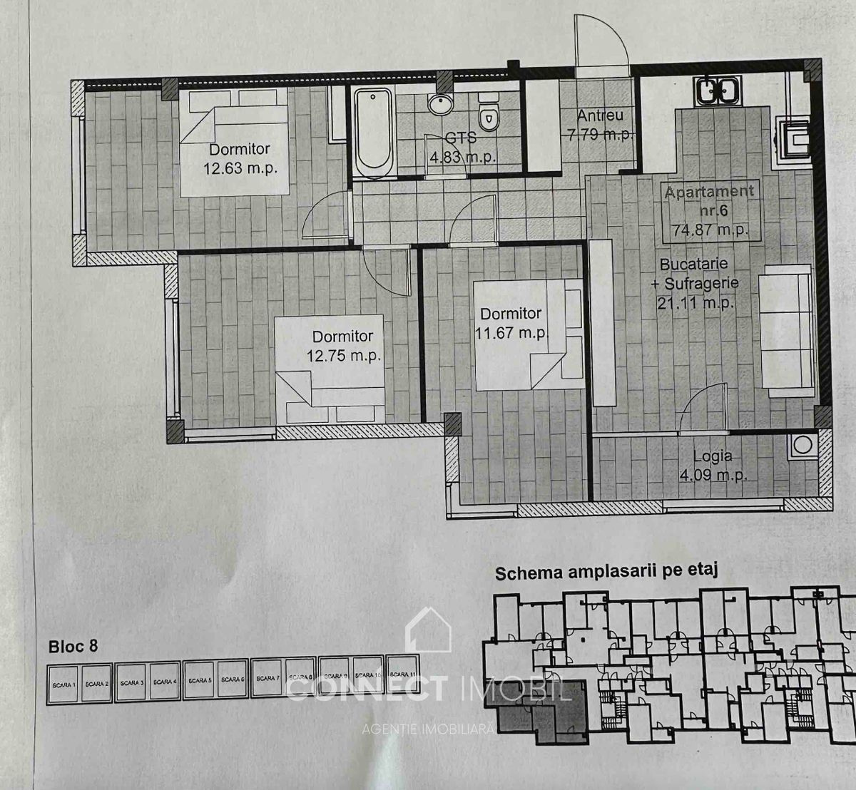
Spre vanzare apartament în sect. Durlesti, str. Bisericii.
Apartament amplasat la etajul 2 din 5 pe o suprafață utilă de 75 mp.
Compartimentat în 3 camere, living, bucătărie, grup sanitar, balcon, antreu.
Dispune de:
-Încălzire autonomă;
-Încălzire prin pardoseală;
-Geamuri termopan;
-Geamuri panoramice;
-Ușă blindată;
În nemijlocită apropiere: grădinițe, supermarket, farmacie, cafenea, etc.
Acces facil la transport public în orice direcție a orașului.
Compania CONNECT IMOBIL vă ajută în procesul de vînzare-cumpărare a unui imobil, teren sa
spațiu comercial, beneficiind de consultanță juridică în domeniul imobiliar și accesarea unui credit
ipotecar.
TOATE OFERTELE DISPONIBILE LE GĂSIȚI AICI: https://connectimobil.md/

Locație
logo maib