str. Gradina Botanica, Botanica, Chisinau Продажа

Ботаника

160 000€

64 м2

  • 2
  • 1
  • 64 м2
  • 9/14
Дополнительно
  • Автономное отопление
  • Стеклопакет
  • Домофон
  • Лифт
  • Детская площадка
Описание

Продается квартира в Кишиневе, в районе Botanica.

Находится на str. Grădina Botanică

От застройщика INAMSTRO

Комплекс Newton House, 1 транш.

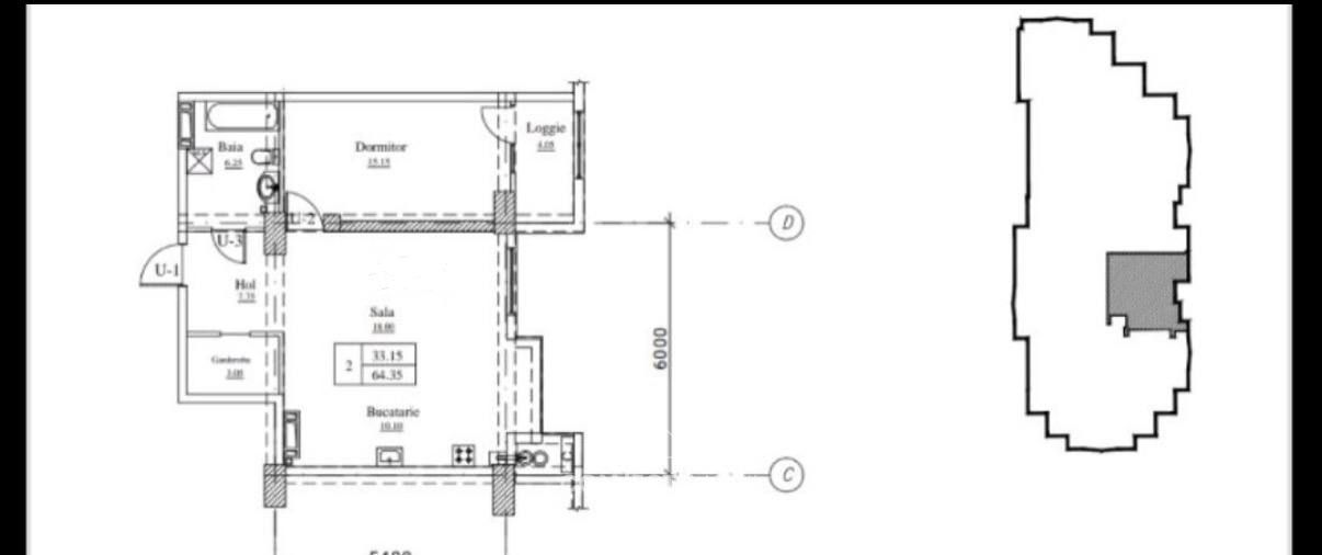
Общая площадь квартиры составляет 64 м2 и разделена на: 2 спальни, ливинг , кухню, 2 санузла.

 Квартира находится на 9 этаже из 14.

Преимущества:

-Автономное отопление;

-С видом на парк Grădina Botanică;

-Стеклопакет;

-Белый вариант;

-Панорамные окна;

-Доступ к общественному транспорту;

-Развитая инфраструктура;

ATENȚIE! Acum poți procura comod în rate de la 20% rată inițială sau prin programul guvernamental Prima Casă cu doar 10% prima rată!

Compania CONNECT IMOBIL vă ajută în procesul de vînzare-cumpărare a unui imobil, teren sau spațiu comercial, beneficiind de consultanță juridică în domeniul imobiliar și accesarea unui credit ipotecar.

TOATE OFERTELE DISPONIBILE LE GĂSIȚI AICI https://www.connectimobil.md/sale/kvartiry

Расположение
logo maib