Str. Nicolae Dimo, Durlesti, Chisinau Продажа

Дурлешты

72 500€

58 м2

  • 2
  • 1
  • 58 м2
  • 6/9
Дополнительно
  • Автономное отопление
  • Стеклопакет
  • Бронированная дверь
  • Видеонаблюдение
  • Лифт
  • Детская площадка
Описание

Spre vanzare apartamente direct de la DEZVOLTATOR cu posibilitatea de achitare in rate pina in 31.12.2028.
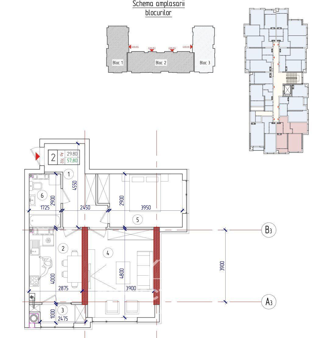
Apartamente disponibile cu 1,2,3 camere , varianta albă, în noul bloc locativ "Milanin Rezidence", amplasat în sectorul Durlești, strada Nicolae Dimo.
Compartimentare: antreu, dormitor, living, bucatarie, bloc sanitar, balcon.
Imobilul se manifestă prin multiple facilități:

- Constructia blocului corespunde standartelor europene;

- Geamuri termopane cu profil de 6 camere și 3 foi de sticlă;

- Geamuri panoramice;

- Apartamente disponibile de la 38,8 mp- 70 mp;

- Incalzire autonoma;

- Pereții din interior și exterior sunt construiti din caramida rosie;

- Parcare subterană cu 3 niveluri( acopera 100% numarul de apartamente);

- Ascensor silențios clasa PREMIUM cu deplasare inclusiv la nivelul parcării subterane;

- Izolare fonica si termica prin polistiren;

- Blocul este format din 4 scari;

- Amplasare favorabilă cu infrastructură dezvoltată.

ATENTIE! POSIBILITATE DE ACHITARE IN RATE PINA LA 4 ANI, CU PRIMA RATA DOAR DE 4000 EURO!
Darea in exploatare: Decembrie 2026!
Blocul este localizat intro zona dezvoltata in apropiere: teren de joacă, farmacie, supermarket, grădiniță, Liceu etc.
Acces facil la transportul public în toate direcțiile (rutiere: nr. 101, 124, autobuzul nr. 11 şi troleibuzul 35).
TOATE OFERTELE DISPONIBILE LE GĂSIȚI AICI https://www.connectimobil.md/sale/kvartiry

Расположение
logo maib